REQUEST A TOUR If you would like to see this home without being there in person, select the "Virtual Tour" option and your agent will contact you to discuss available opportunities.
In-PersonVirtual Tour

$ 650,000
Est. payment /mo
New
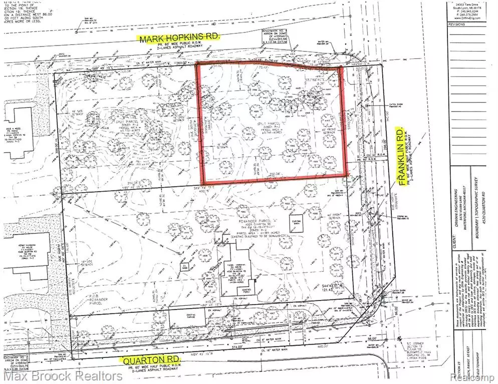
0000 Mark Hopkins Rd Bloomfield Hills, MI 48302
0.75 Acres Lot
UPDATED:
Key Details
Property Type Commercial
Listing Status Active
Purchase Type For Sale
Municipality Bloomfield Twp
Subdivision Bloomfield Twp
MLS Listing ID 20251057679
Lot Size 0.750 Acres
Acres 0.75
Lot Dimensions 200x168x152x200
Source Realcomp
Property Description
Amazing opportunity to build your dream home on this magnificent 0.746-acre parcel in a highly sought-after area of Bloomfield Hills. Surrounded by multi-million-dollar homes, this prime location offers the perfect setting and convenience—close to everything you need.Water, sewer, and utilities are available at the street.Looking for more space? The adjacent 0.772-acre lot is also available for sale at $650,000, providing an exceptional chance to expand your building area.Don't miss out—buy now and build later, or start designing your dream home today!
Location
State MI
County Oakland
Area Oakland County - 70
Zoning Residential
Direction N of Quarton W of Franklin S side of Hopkins Rd
Exterior
View Y/N No
Schools
School District Bloomfield Hills
Others
Tax ID Split
Acceptable Financing Cash, Conventional
Listing Terms Cash, Conventional
Listed by Max Broock Realtors


